Prodajna cijena 175 000 € ~ 1 318 538 kn

Posrednička naknada (3% +PDV) 6 563 € ~ 49 445 kn

Ukupna investicija 181 563 € ~ 1 367 983 kn

Zatvori

Prodajna cijena 175 000 €

Kvadratura 44,76 m2

Lokacija Pula

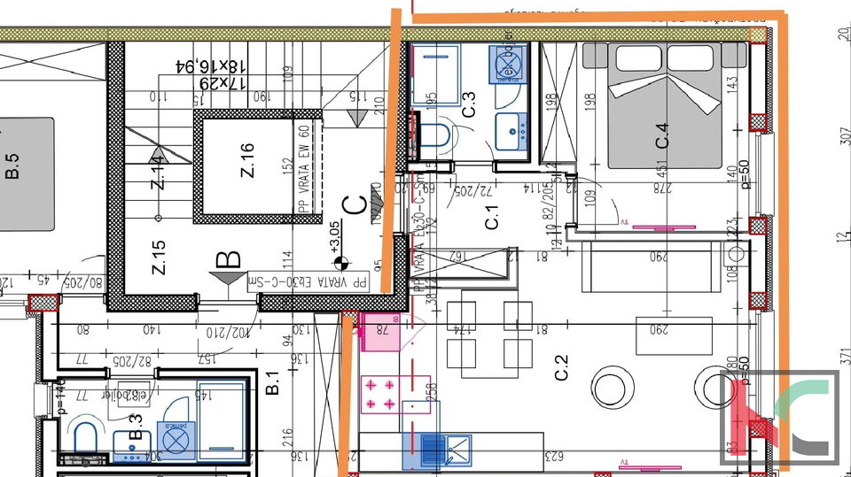
Šifra objekta S-2212

Osnovne informacije

  • Cijena po kvadratu~ 3910 €/m2
  • Tip stana1S
  • Energetski razredA+
  • Broj soba2
  • Broj spavaćih soba1
  • Broj kupaonica1
  • Kat1
  • Broj etažaJednoetažni
  • Ukupno katova2
  • Vrsta zgradeStambena
  • Godina izgradnje2025
  • Br. parkirnih mjesta1

PULA, JEDNOSOBAN STAN, 1 KAT, #PRODAJA

Na odličnoj lokaciji u mirnom i razvijenom naselju u Puli, u tijeku je izgradnja dvije manje stambene zgrade suvremenog dizajna. Svaka zgrada sastoji se od četiri stana, a projekt je osmišljen s naglaskom na funkcionalnost, kvalitetnu gradnju i ugodno stanovanje.

Ovaj stan se nalazi na 1. katu ukupne neto stambene površine 37,23 m2, sastoji se od hodnika,dnevnog boravka s kuhinjom i blagovaonicom, jedne spavaće sobe i kupatila, dok mu pripada i spremište te parkirno mjesto u garaži, a time dobiva ukupnu reduciranu površinu od 44,76m2

Zgrada će biti opremljena liftom i podzemnom garažom, dok ugodnost samom stanovanju pružaju: električno podno grijanje,klimatizacija u svakoj prostoriji, električne rolete i komarnici, kvalitetne podne obloge – kombinacija parketa i keramike.

Planiran završetak ove gradnje je 12.2026 god.






**Zainteresirani kupci mogu dobiti potrebne informacije o oglašenoj nekretnini i razgledati istu putem naših agenata isključivo uz prethodno potpisivanje ugovora o posredovanju o prometu nekretnina.

Prikaži više

Dodatne informacije

Prodajna cijena

    Prodajna cijena 175 000 € ~ 1 318 538 kn

    Posrednička naknada (3% +PDV) 6 563 € ~ 49 445 kn

    Ukupna investicija 181 563 € ~ 1 367 983 kn

Razna svojstva

  • PVC stolarija

Grijanje

  • Klima
  • Podno grijanje
  • Struja

Instalacije

  • Struja
  • Voda
  • Kanalizacija

Stanje zgrade

  • Novogradnja

Orijentacija

  • Jug
  • Zapad

U blizini

  • Javni prijevoz
  • Trgovina
  • Park
  • Škola

Dokumentacija

  • Građevinska dozvola
Ova stranica ostavlja "kolačiće" na Vašem kompjutoru za potrebe navigacije i anonimizirane statistike pristupa. Korištenjem ove stranice prihvaćate i potvrđujete ove "kolačiće".