Prodajna cijena 225 000 € ~ 1 695 263 kn

Posrednička naknada (3% +PDV) 8 438 € ~ 63 572 kn

Ukupna investicija 233 438 € ~ 1 758 835 kn

Zatvori

Prodajna cijena 225 000 €

Kvadratura 54,12 m2

Lokacija Pula, Centar

Šifra objekta S-2309

Osnovne informacije

  • Cijena po kvadratu~ 4157 €/m2
  • Tip stana2S+DB
  • Energetski razredA+
  • Broj soba3
  • Broj spavaćih soba2
  • Broj kupaonica1
  • Kat1
  • Broj etažaJednoetažni
  • Ukupno katova6
  • Vrsta zgradeStambena
  • Godina izgradnje2025
  • Br. parkirnih mjesta1

PULA, CENTAR, STAN U NOVOIZGRAĐENOJ ZGRADI, PARKING,LIFT #PRODAJA

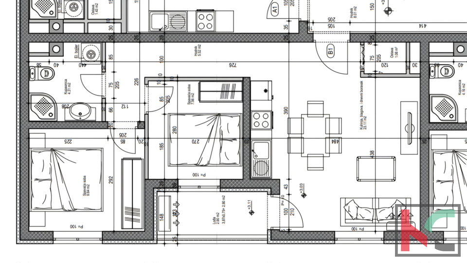
Na atraktivnoj lokaciji u samom centru grada, u neposrednoj blizini tržnice i svih važnih sadržaja, prodaje se moderan stan smješten na 1. katu novoizgrađene stambene zgrade s liftom.

Stan je funkcionalnog rasporeda te se sastoji od kuhinje s blagovaonicom i dnevnim boravkom, lođe, hodnika, dvije spavaće sobe i kupaonice. Prodaje se po sistemu „ključ u ruke“, odnosno potpuno završen i spreman za useljenje, s naglaskom na kvalitetne materijale i opremu.

Oprema uključuje modernu ALU vanjsku stolariju, podno grijanje na struju u cijelom stanu, kvalitetnu klimatizaciju te protuprovalna i protupožarna ulazna vrata.

Dodatna i iznimno vrijedna prednost ove nekretnine je vlastito parkirno mjesto u garaži ispod zgrade, što predstavlja rijetku pogodnost za život u centru grada.







Prikaži više

Dodatne informacije

Prodajna cijena

    Prodajna cijena 225 000 € ~ 1 695 263 kn

    Posrednička naknada (3% +PDV) 8 438 € ~ 63 572 kn

    Ukupna investicija 233 438 € ~ 1 758 835 kn

Razna svojstva

  • Balkon
  • Lift
  • Alu stolarija

Grijanje

  • Struja
  • Podno grijanje

Instalacije

  • Struja
  • Voda
  • Kanalizacija

Stanje zgrade

  • Novogradnja

Orijentacija

  • Sjever
  • Zapad

Dokumentacija

  • Građevinska dozvola
Ova stranica ostavlja "kolačiće" na Vašem kompjutoru za potrebe navigacije i anonimizirane statistike pristupa. Korištenjem ove stranice prihvaćate i potvrđujete ove "kolačiće".