Prezzo 199 000 € ~ 1 499 366 kn

Spese di agenzia (3% +IVA) 7 463 € ~ 56 226 kn

Investimento totale 206 463 € ~ 1 555 592 kn

Chiudi

Prezzo 199 000 €

Superficie 78,75 m2

Localita' Pula, Veruda

Codice immobile S-2204

Informazioni di base

  • Prezzo al metro quadro~ 2527 €/m2
  • Tipo di appartamento4 locali
  • Classe energeticaD
  • Numero di stanze4
  • Numero di camere da letto3
  • Numero di bagni1
  • Piano3
  • Numero di pianiDoppio
  • Numero di piani3
  • Tipo di costruzioneResidenziale
  • Posti di parcheggio1

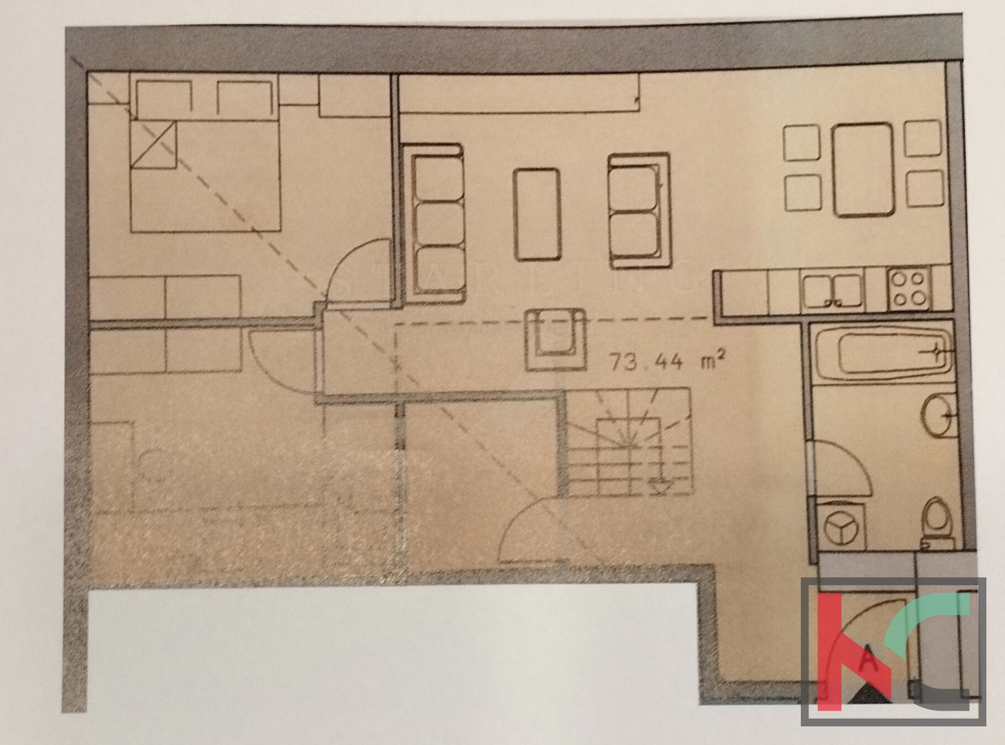
Pula, Veruda, appartamento con tre camere da letto 78,75m2 su due piani

In vendita è un appartamento con tre camere da letto con una superficie totale di 78,75m2 a Veruda, al terzo piano dell'edificio austro-ungarico.
Si compone al piano inferiore dell'ingresso, cucina con sala da pranzo, soggiorno, due ampie camere da letto, ripostiglio e bagno, mentre la scala interna conduce al piano superiore dove si trova un'ulteriore camera da letto.
L'appartamento è dotato di contatori separati di elettricità e acqua, parquet nelle camere da letto, aria condizionata e parcheggio di fronte all'edificio, e l'orientamento occidentale dell'appartamento permette tutto il giorno il sole.
Grazie alla sua eccellente posizione, questa proprietà è adatta per la vita familiare o l'affitto poiché si trova vicino a scuole, asili, supermercati e trasporti pubblici.

**Gli acquirenti interessati possono ottenere le informazioni necessarie sull'immobile pubblicizzato e visitarlo con i nostri agenti solo dopo aver firmato il contratto di intermediazione immobiliare.

Mostra di più

Informazioni aggiuntive

Prezzo

    Prezzo 199 000 € ~ 1 499 366 kn

    Spese di agenzia (3% +IVA) 7 463 € ~ 56 226 kn

    Investimento totale 206 463 € ~ 1 555 592 kn

Riscaldamento

  • Elettricita'
  • Aria condizionata

Utenze

  • Acqua
  • Scarico acqua
  • Elettricita'

Nelle vicininanze di

  • Trasporto pubblico
  • Ristorante
  • Negozio alimentari
  • Parco
  • Farmacia
  • Scuola
  • Centro del paese

Permessi

  • Certificato di proprietà
Questo sito Web sta lasciando "cookie" sul tuo computer ai fini della navigazione dei contenuti e della raccolta di statistiche di utilizzo anonime. Usando questo sito web confermi di essere d'accordo con questo.